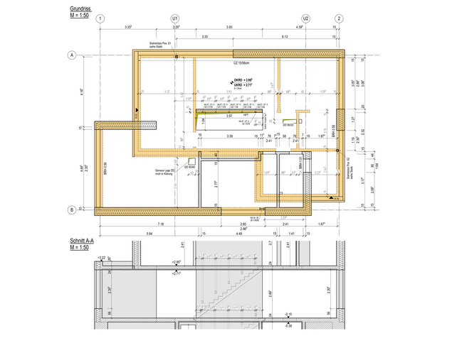
Neubau eines Wohnhauses

Hamburg, Wandsbek

BGF: ca. 180 m2

Leistungen:

Tragwerksplanung LPH 1-6

Merkmale:

WU-Keller in Ortbetonbauweise
Hochwertige Nutzung im UG